Einfamilienhaus Taša
Brauchen Sie Hilfe?
+420 587 439 827
+420 587 439 833
variovila@variovila.cz
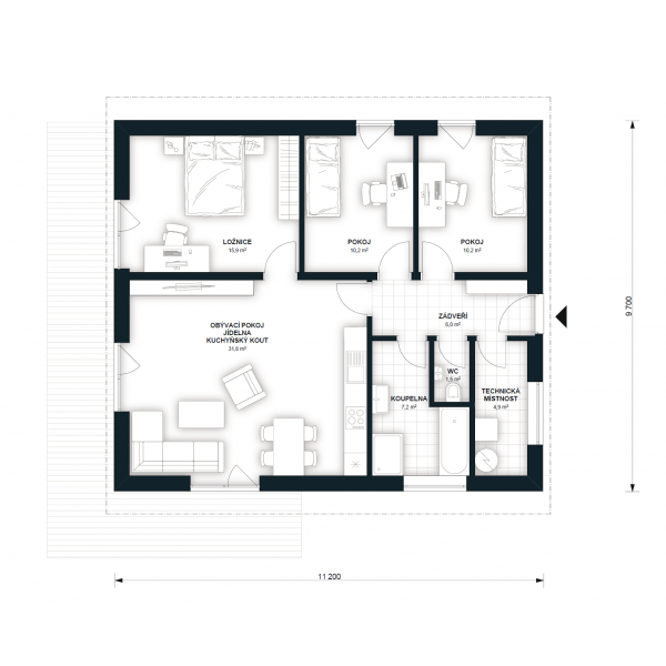
Disposition
4+Küchenecke
Nutzfläche
88 m2
Bebaute Fläche
109 m2
Dachneigung
25°
Einfamilienhaus Taša
Ein ebenerdiges Einfamilienhaus mit Satteldach. Küche, Essecke und Wohnzimmer bilden einen geräumigen Raum, in dem sich der Alltag einer Familie abspielt. Zu unumstrittenen Vorteilen dieses Holzhauses gehören ein separates WC, ein geräumiges Badezimmer sowie die Möglichkeit eines Lagerraums als unmittelbarer Bestandteil des Hauses. Eine wirtschaftliche Wahl für vierköpfige Familien.
Grundriss Häuserstandards Ich möchte mehr erfahren
Bauliche Standards unserer Häuser
Erfahren Sie, was alles das für Sie gebaute Haus beinhalten wird.



